Projeto Portim’us City Centrum 3

Planta de cobertura / implantação

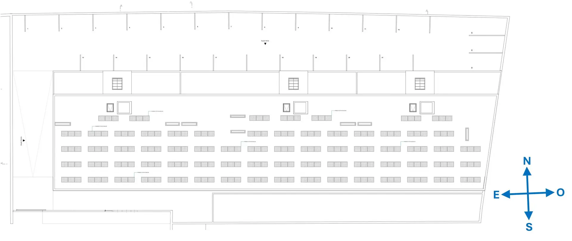
Planta da cave -1

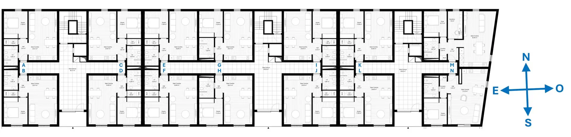
Planta do piso 0

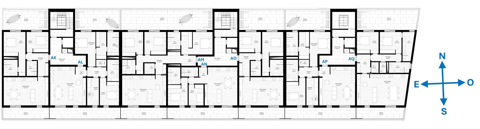
Planta do piso 1

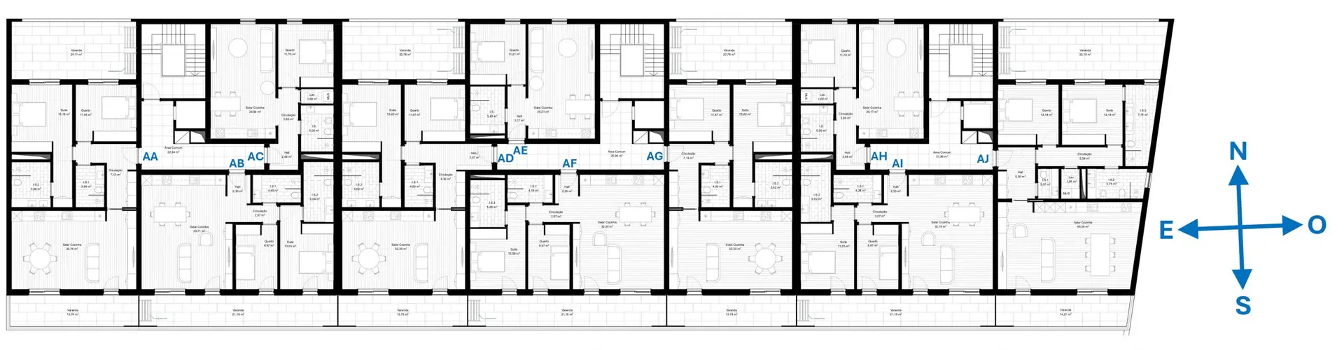
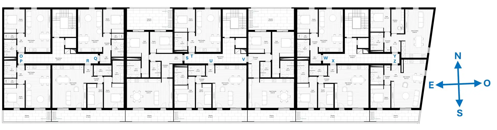
Planta do piso 2

Planta do piso 3

Este site utiliza cookies próprios e de terceiros para o seu correto funcionamento e para fins analíticos. Ele contém links para sites de terceiros com políticas de privacidade de terceiros que você pode ou não aceitar ao acessá-los. Ao clicar no botão Aceitar, você concorda com o uso dessas tecnologias e com o processamento de seus dados para esses fins.   
Privacidad